黒御影石造作洗面カウンター❘沖縄県うるま市
LIXIL「カスタムバニティ」の洗面ボウル採用|御影石オーダー洗面カウンター
リフォーム箇所別にみる|すべて
洗面化粧台のシャワーホースの水漏れをきっかけに、オーダー洗面カウンターのご相談をいただきました。
お客様がご希望されたのは、
LIXILカスタムバニティの洗面ボウル。
洗練されたデザイン性を備えながら、日常使いにも配慮された実用性の高いスタイルをご希望でした。
さらに、「趣味のDIYで使用しているクスノキで棚板とミラー枠を製作してほしい」とのことでした。
|
【Before】 |
【After】マットな質感の黒御影石 × 濃紺タイル × 木の組み合わせで、落ち着きのある洗面空間に仕上がりました。 |
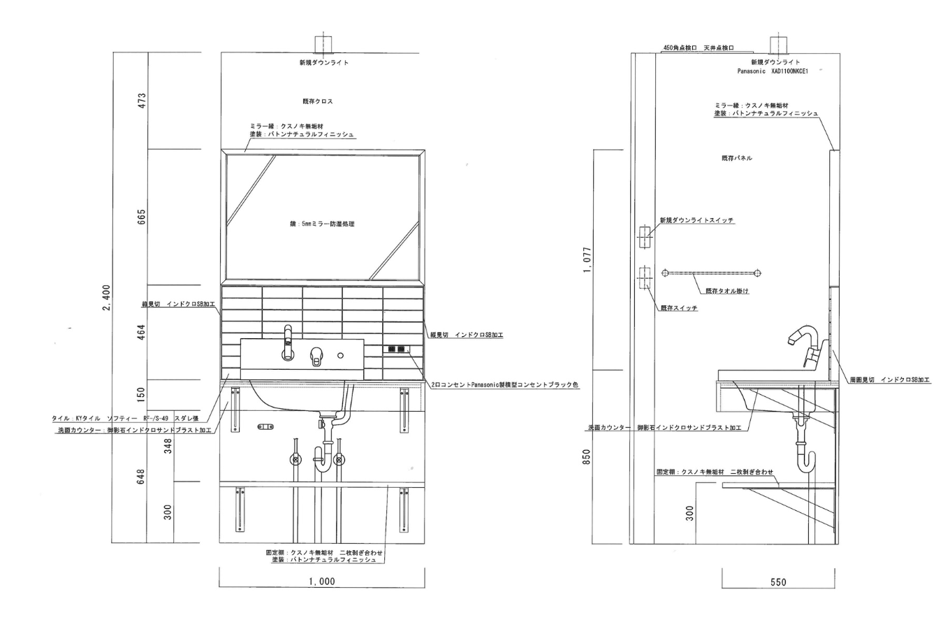
図面

御影石インド黒の洗面カウンター
|
メインの天板には、水廻りに最適な御影石のインド黒を採用。 サンドブラスト加工を施すことで、石本来の質感を活かしつつ、光の反射を抑えたマットで上品な質感に仕上げました。 |
背面には濃紺のアクセントタイルを施工。 |
クスノキ材を、木工場にて加工。
|
オープン収納棚板:黒御影石のクールさと、クスノキの柔らかな風合いが絶妙なコントラストを生んでいます。 |
ミラー枠:木目が美しく、洗面台に向かうたびに木の温もりを感じられます。 |
LIXILのカスタムバニティの洗面ボウル
|
洗面ボウルは日常の家事や手洗いがしやすいようリクシルのカスタムバニティー。壁付水栓のため水ハネがしにくく、お手入れもスムーズです。 |
日常使いに便利なコンセントも設置しました。 |
カスタムバニティ洗面ボウル特長
|
ひろびろボウル底が広くて大容量洗面ボウル。 |
くるくる水栓使いたい位置にくるりと回せるくるくる水栓。 |
ホース収納式ホースを引き出して使えるので、ボウルのお手入れもラクラク便利です。 |
グースネック形状コップや花びんの水汲みもしやすい形状です。 |
お客様の声
「私たちの依頼に丁寧かつ迅速に対応してもらい感謝しています。また、自社工場で石材や無垢材を自由加工できるので理想的な洗面台のデザイン提案や施工をしてもらいました!今後もキッチンやトイレのリフォームの依頼を予定していますので宜しくお願いします。」
嬉しいお言葉をいただき、ありがとうございます。
水廻りリフォームのご相談はお気軽に
既製品の交換はもちろん、
造作洗面カウンターのご提案も可能です。
お住まいに合わせた洗面空間づくりをお手伝いいたします。

















